|
||
全部產品分類
|
||
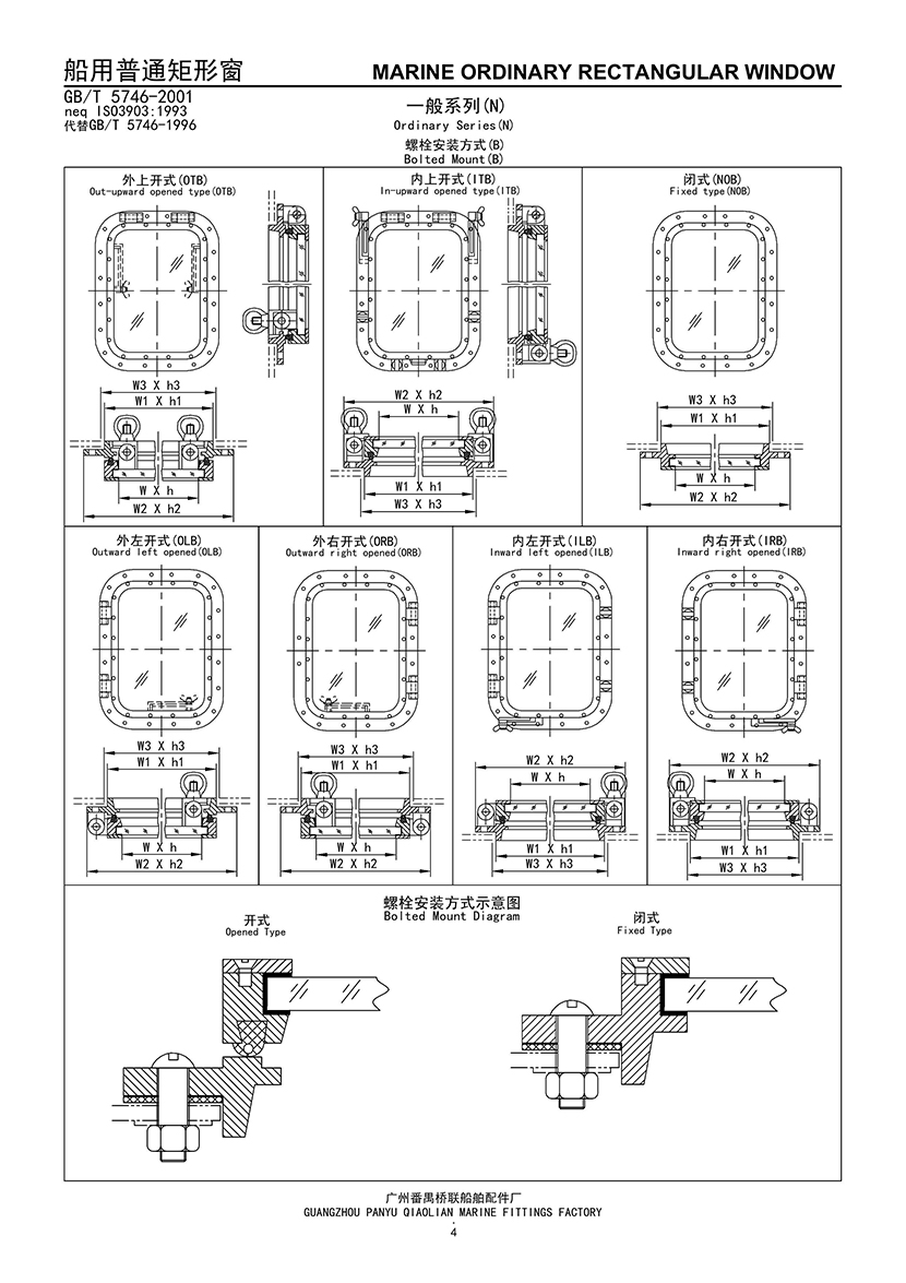
| 船用螺栓安裝式普通矩形窗 | |||
| 安裝方式: | 螺栓式 | 圍壁開孔尺寸: | 612×852 126mm |
| 開啟形式: | 上鉸鏈 | ||



| -供應商聯系方式- | |||||
|
|
公司名稱: | 廣州番禺橋聯船舶配件廠 |
|
聯系人姓名: | 陳偉安 |
| 公司地址: | 廣東省廣州市番禺區石碁鎮大龍工業區黃山路2號之8 | 聯系人電話: | 020-84634555/84634492 | ||
| 聯系人郵箱: | qiaoliancn@126.com | ||||